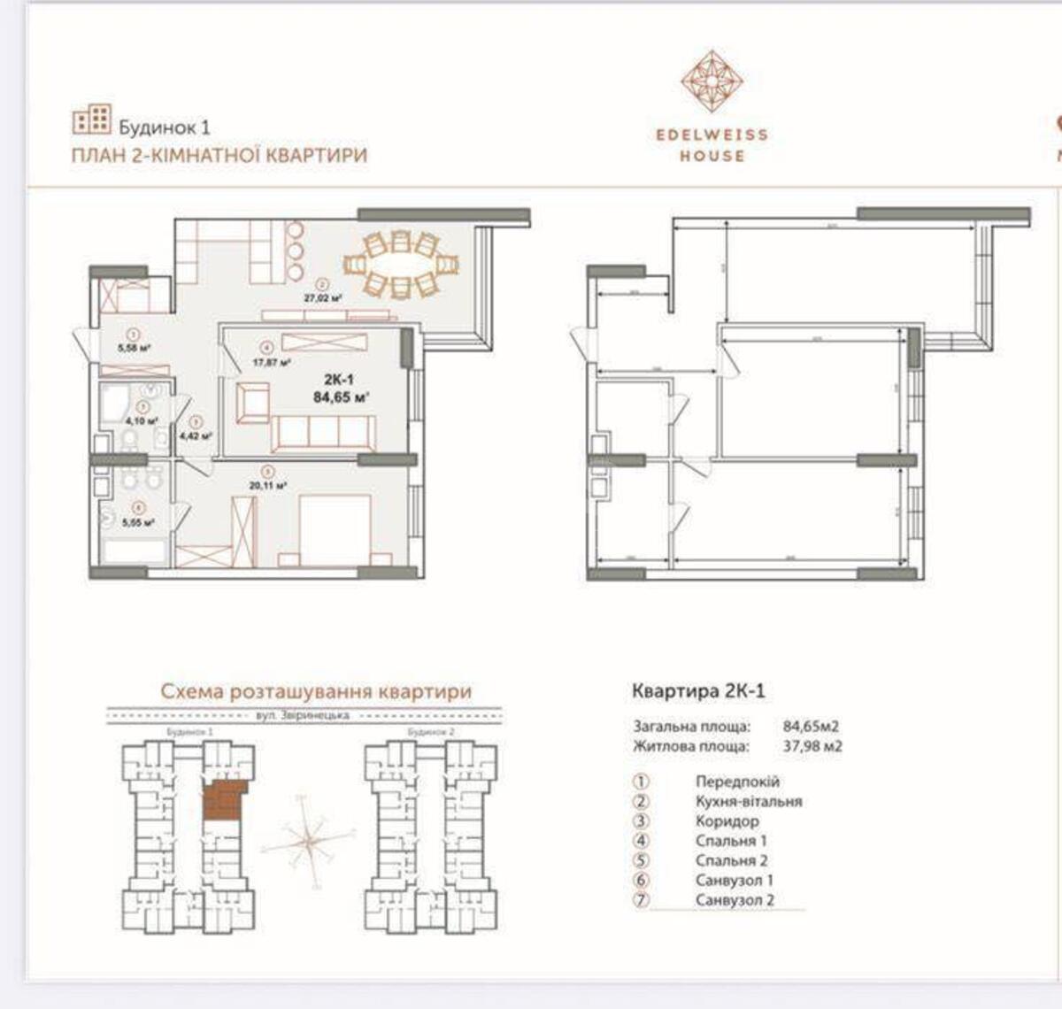
2к квартира ул. Зверинецкая 72

  • Печерский район ул. Зверинецкая 72
  • Код: SF-3-236-220
  • Добавлено: 05.11.2025
  • Добавить в избранное
Тип рынка
Первичный рынок
Улица
ул. Зверинецкая 72
Количество комнат
2
Этаж
20 Этаж
Этажность
24 этажный дом
Общая площадь
84 м2
Общее состояние
С ремонтом
Цена:
6 725 921 грн.
160 000 USD
  • AXIS Real Estate
  • AXIS Real Estate
  • AXIS Real Estate
Описание объекта

ЖК Edelweiss House, 2 комнатная квартира. Дом бизнес-класса, презентабельная входная группа, закрытая территория, подземный паркинг, видеонаблюдение и система контроля доступа. собственный детский сад и учебные заведения. Немецкое проектирование - центральная система вентиляции, звукоизоляция от соседей, система очистки воды, датчики движения и "антизатопления". Также предусмотрена возможность интеграции системы "умный дом" в общую систему жилого комплекса.

Дополнительная информация

Похожие предложения