
2к квартира ул. Макеевская 10А
- Добавить в избранное
-
Поделиться ссылкой
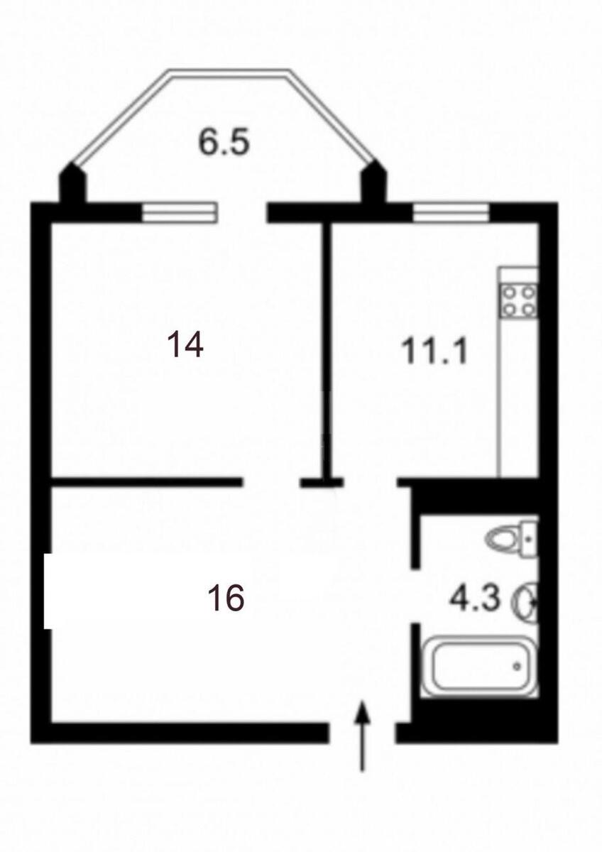
2 комнатная квартира. Просторная квартира с раздельной планировкой и евроремонтом. Вся мебель и техника новая. Кухня-холл - 16 м², спальня - 16 м², детская или кабинет - 11 м². Санузел современный, оснащен всем необходимым. Большая застекленная лоджия добавляет уюта и пространства. В квартире установлена варочная панель и духовой шкаф. Дом расположен в тихом и зеленом районе. Работает централизованное отопление. Помещение находится в доме с современным ремонтом и комфортными условиями проживания. Территория дома ухоженная и безопасная, удобное местоположение в зеленой зоне. Рядом есть все необходимое для жизни: магазины, транспортная развязка и места для отдыха.