1к квартира ул. Заболотного Академика 1

  • Голосеевский район ул. Заболотного Академика 1
  • Код: SF-3-275-000
  • Добавлено: 28.02.2026
  • Добавить в избранное
Тип рынка
Первичный рынок
Улица
ул. Заболотного Академика 1
Количество комнат
1
Этаж
33 Этаж
Этажность
34 этажный дом
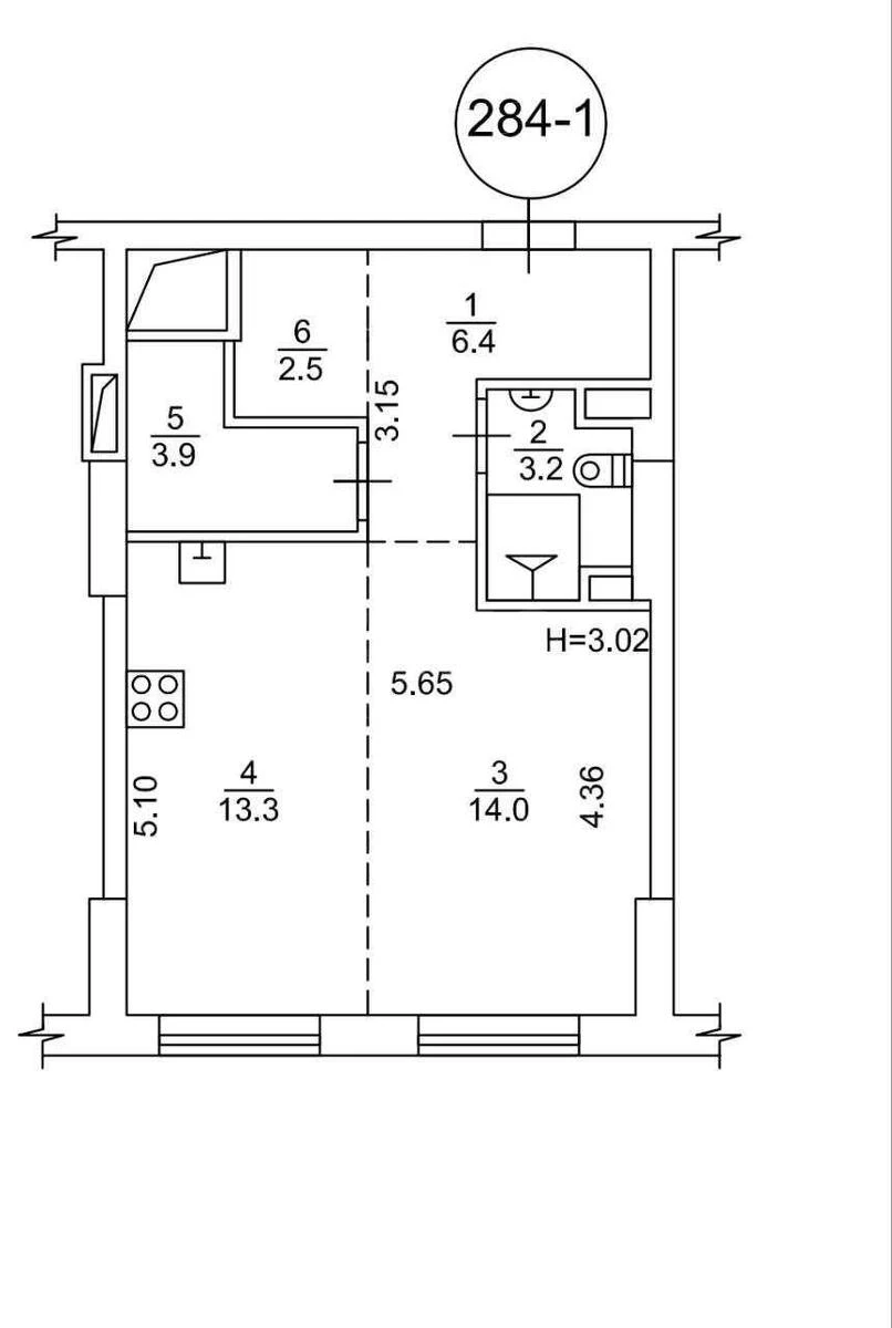
Общая площадь
44 м2
Общее состояние
Без ремонта
Цена:
3 759 547 грн.
87 000 USD
Описание объекта

ЖК Метрополис, 1 комнатная квартира. В состоянии «от застройщика» со свободной планировкой, что позволяет создать пространство по своему вкусу. Предусмотрен просторный смежный санузел, установлен котел, все необходимые счетчики, индивидуальное электрическое отопление и противопожарная сигнализация. Дом принадлежит к современному жилому комплексу бизнес-класса «Метрополис». Монолитная конструкция, закрытая территория с видеонаблюдением, просторное лобби с зоной отдыха, консьерж-сервис. Для удобства жильцов предусмотрен подземный паркинг, бомбоубежище и генератор. Территория комплекса — настоящий ботанический сад с соснами, декоративными деревьями, бегониями и душистыми травами. Для детей обустроена уникальная площадка, а для взрослых — зона BBQ, спортивная площадка для тренировок, йоги и workout. В проекте — строительство интерактивного фонтана и скейтпарка. Локация обеспечивает удобный доступ ко всему необходимому для жизни. Рядом ТРЦ «Respublika», «Магелан», METRO, ВДНХ, крытые теннисные корты, картинг-центр. Станции метро «Теремки» и «Ипподром» находятся всего в 5 минутах ходьбы.

Похожие предложения