Продажа

Все фото (6)
1к квартира ул. Михаила Максимовича 24
- Добавить в избранное
-
Поделиться ссылкой
Тип рынка
Первичный рынок
Улица
ул. Михаила Максимовича 24
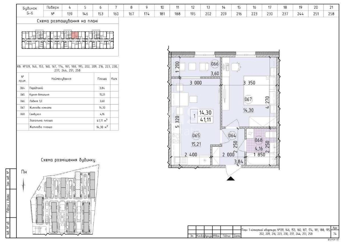
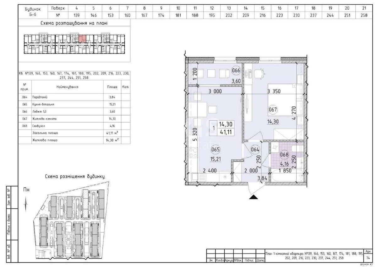
Количество комнат
1
Этаж
21 Этаж
Этажность
21 этажный дом
Общая площадь
41 м2
Общее состояние
Без ремонта
Цена:
2 539 707 грн.
61 000 USD
Описание объекта
ЖК Новая Англия, 1 комнатная квартира. Квартира продается без ремонта, что дает вам возможность самостоятельно создать интерьер своей мечты. Экологическая зона: парки и зеленые зоны делают этот район идеальным для прогулок и отдыха (Елизаветинский парк с озерами, ВДНХ и Голосеевский парк). Современная жизнь: дом оборудован современной инфраструктурой и удобствами для максимального комфорта жителей. Комплекс имеет закрытую территорию, что соответствует концепции ' город в городе', и обеспечен надежными системами безопасности.
Дополнительная информация