1к квартира ул. Глубочицкая 73

  • Шевченковский район ул. Глубочицкая 73
  • Код: SF-3-238-993
  • Добавлено: 11.11.2025
  • Добавить в избранное
Тип рынка
Первичный рынок
Улица
ул. Глубочицкая 73
Количество комнат
1
Этаж
8 Этаж
Этажность
24 этажный дом
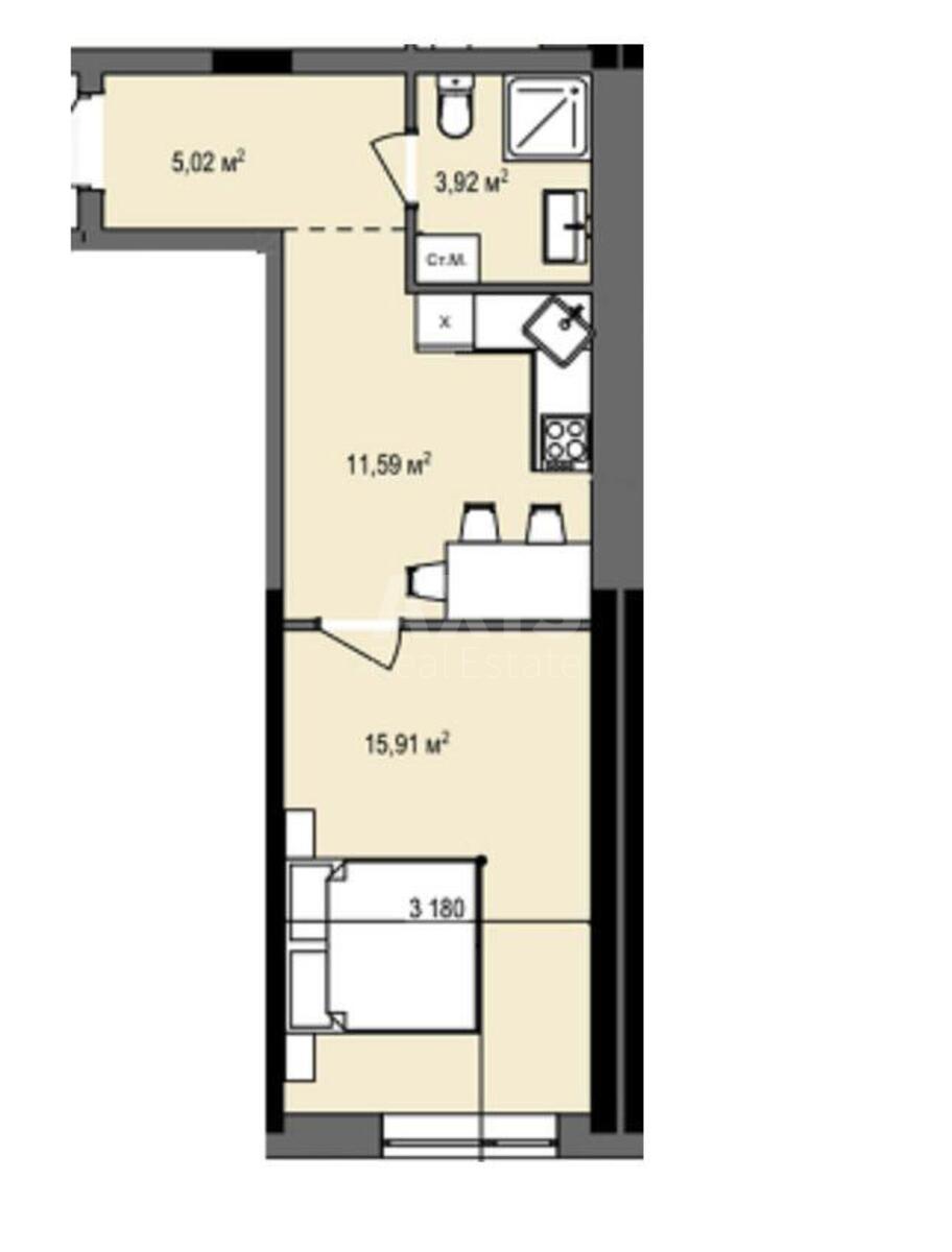
Общая площадь
36 м2
Общее состояние
Без ремонта
Цена:
2 340 278 грн.
55 800 USD
  • AXIS Real Estate
  • AXIS Real Estate
  • AXIS Real Estate
Описание объекта

ЖК Podil Plaza & Residence, 1 комнатная квартира. 1к квартира -36,44м2. кухня-гостиная - 27,5м2. 7-10 этажи/16этажного. Развитая инфраструктура. Замечательная транспортная развязка. Хорошая локация. Хороший район.

Дополнительная информация

Похожие предложения