1к квартира шоссе Надднепрянское 2А

  • Голосеевский район шоссе Надднепрянское 2А
  • Код: SF-3-239-015
  • Добавлено: 11.11.2025
  • Добавить в избранное
Тип рынка
Первичный рынок
Улица
шоссе Надднепрянское 2А
Количество комнат
1
Этаж
15 Этаж
Этажность
26 этажный дом
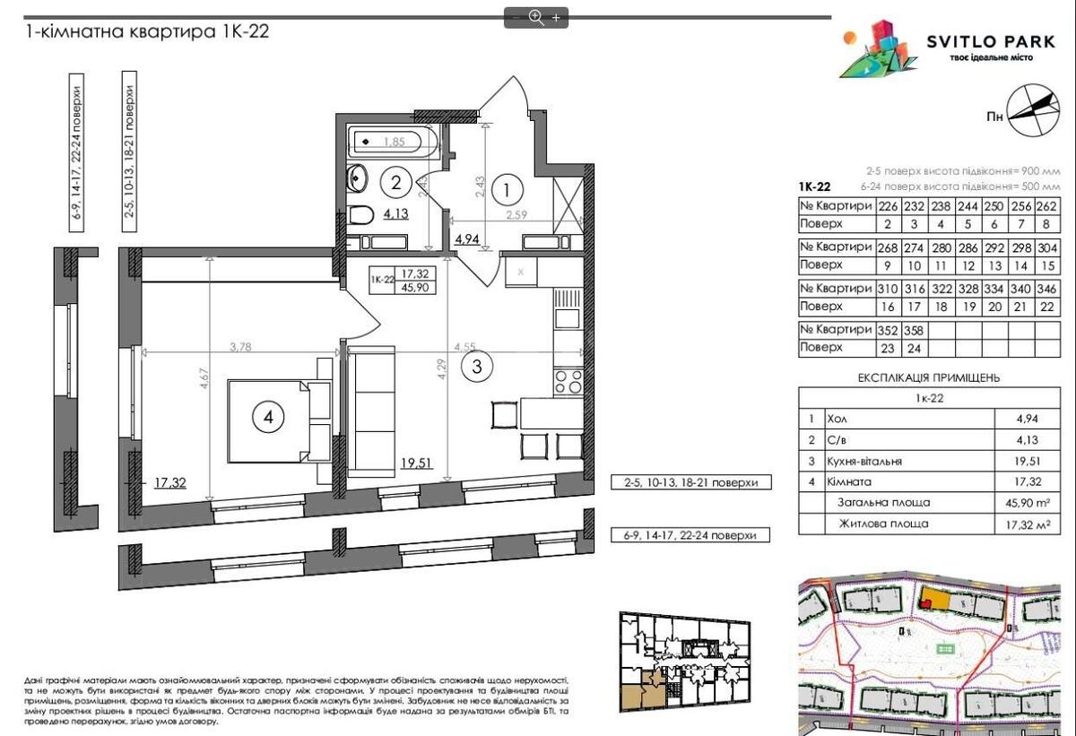
Общая площадь
45 м2
Общее состояние
Без ремонта
Цена:
2 935 833 грн.
70 000 USD
  • AXIS Real Estate
  • AXIS Real Estate
  • AXIS Real Estate
Описание объекта

ЖК Svitlo Park, 1 комнатная квартира. Квартира большого метража, просторная. Кухня-гостиная с двумя панорамными окнами - 19,51 м2, спальня также имеет два панорамных окна -17 м2 и коридор с нишей под шкаф-купе или гардероб. Состояние - после строителей. Выполнены все черновые работы. Окна застеклены, установлены входные двери - металлические, надежные и стильные, не требуют замены. Выполнена стяжка пола под лазер, под стяжкой разведено водоснабжение, отопление, подключены радиаторы с терморегуляторами.

Дополнительная информация

Похожие предложения