1к квартира пр-т Бандеры Степана 2Д

  • Оболонский район пр-т Бандеры Степана 2Д
  • Код: SF-3-122-509
  • Добавлено: 25.04.2025
  • Добавить в избранное
Тип рынка
Первичный рынок
Улица
пр-т Бандеры Степана 2Д
Количество комнат
1
Этаж
15 Этаж
Этажность
26 этажный дом
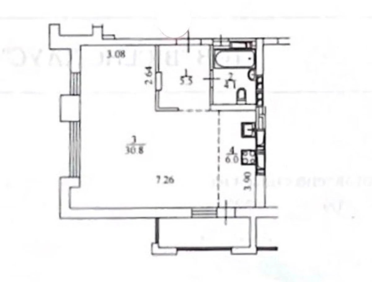
Общая площадь
50 м2
Общее состояние
Без ремонта
Цена:
3 591 535 грн.
85 000 USD
  • AXIS Real Estate
  • AXIS Real Estate
  • AXIS Real Estate
Описание объекта

ЖК Dock32, 1 комнатная квартира. С функциональной планировкой: отдельная спальня, кухня-гостиная и просторная прихожая. Выполнена перепланировка, залита стяжка пола, сделаны штукатурные работы. В наличии профессиональный дизайн-проект с расстановкой мебели и техники, что позволяет легко реализовать современный интерьер. Высота потолка - 2,7 м, обеспечивает дополнительный объем и пространство. Дом новый, введен в эксплуатацию в 2022 году, построенный по монолитно-каркасной технологии, стены из керамзитоблока толщиной 250 мм, фасад утеплен минераловатными плитами и отделан штукатуркой. Установлены качественные металлопластиковые окна Rehau. В подъезде - консьерж, система охраны и видеонаблюдения. Есть современный подземный паркинг с лифтом, а также места для временной парковки и разгрузки авто. Для жильцов обустроена общая зона отдыха на стилобате. Территория комплекса закрытая, обустроена детской площадкой и зонами для отдыха. Локация сочетает удобство центрального расположения с близостью к природе - набережная и парк Наталка находятся в нескольких минутах ходьбы. Рядом - ТРЦ Блокбастер, метро Почайна и Почтовая площадь, удобный доступ к Подолу и центру города.

Дополнительная информация

Похожие предложения