Trade object prov. Pryladnyj 10, 62m2

  • Sviatoshynskyi District prov. Pryladnyj 10
  • Code: RC-201-806
  • Added by: 21.11.2024
  • Add to favorites
Market type
Secondary market
Street
prov. Pryladnyj 10
Purpose
Trade Premise
Floor
1 Floor
Number of storeys
25 storey house
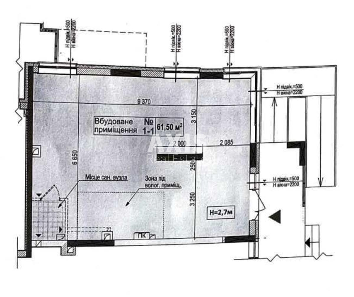
Total area
62 м2
General state
With repair
Price:
28 247 UAH
669 USD
Description of the object

Akademkvartal residential complex, free premises. The houses are fully populated. Closed territory. The room is facade. The entrance is next to the entrance to the front door. Condition - after repair. Electricity - 16 kW. The residential complex already has a Kolo Market and a coffee shop.