
5k apartment vul. Antonovycha 14
- Add to favorites
-
Share link
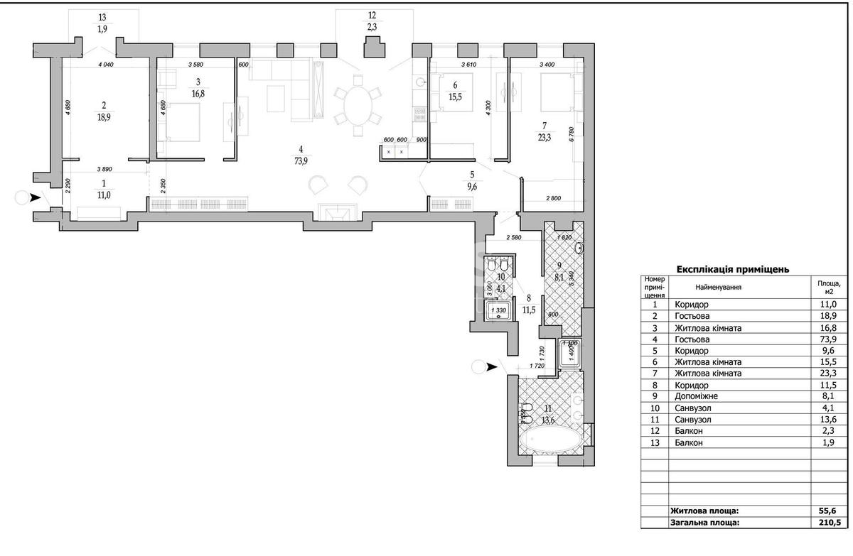
5-room apartment. Spacious apartment after an expensive designer renovation made by an Italian designer in the style of minimalism. The layout is separate: a large bright living room-studio with a bio-fireplace and access to a cozy spacious balcony, three bedrooms, an office, two bathrooms and a laundry room. The apartment is equipped with kitchen furniture and modern appliances: hob, oven, microwave, refrigerator, dishwasher, washing machine and dryer. There is floor heating, air conditioning, a wardrobe, a balcony, a loggia, a terrace and an alarm system. Autonomous heating and air conditioning provide maximum comfort even during blackouts - the Internet, heating and water supply are available. A modern complex with autonomous communications, located in a convenient area. The building has security, alarm system and access via a controlled system. Closed guarded territory with parking for residents. Supermarkets (including Megamarket), beauty salons, restaurants and other necessary infrastructure are located nearby. Good transport interchange provides convenient access to all key points of the city.