
3k apartment vul. Antonova Aviakonstruktora 2Б
- Add to favorites
-
Share link
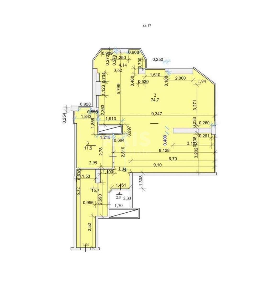
Sherwood residential complex, 3-room apartment. With a free layout after the builders, which makes it possible to arrange the space according to your own style. Large panoramic windows fill the rooms with light and offer a wonderful view of a small park. The spacious area allows you to create two full bedrooms with floor-to-ceiling windows and a spacious kitchen-studio with a seating area. Special attention should be paid to the large, almost 12-meter bathroom with a window, as well as a second bathroom and a convenient corridor where you can arrange a dressing room or a wardrobe system. Individual gas heating, multimedia communications include cable and digital TV and high-speed Internet. The house is new, well maintained, with professional security and an active condominium. For car owners, there is a three-level underground parking with an elevator, as well as ground and multi-level parking spaces. The enclosed, fenced territory of the residential complex has its own landscaping, park and recreation areas with a fountain and dog walking areas. There is a playground for children and a sports facility for active leisure. There is a kindergarten, a doctor's office, shops, cafes and a shopping and entertainment center on the territory. Residents' safety is ensured by round-the-clock security.