2k apartment vul. Hmel'nyc'kogo Bogdana 58А

  • Shevchenkivskyi District vul. Hmel'nyc'kogo Bogdana 58А
  • Code: RF-3-252-856
  • Added by: 09.12.2025
  • Add to favorites
Market type
Secondary market
Street
vul. Hmel'nyc'kogo Bogdana 58А
Number of rooms
2
Floor
15 Floor
Number of storeys
19 storey house
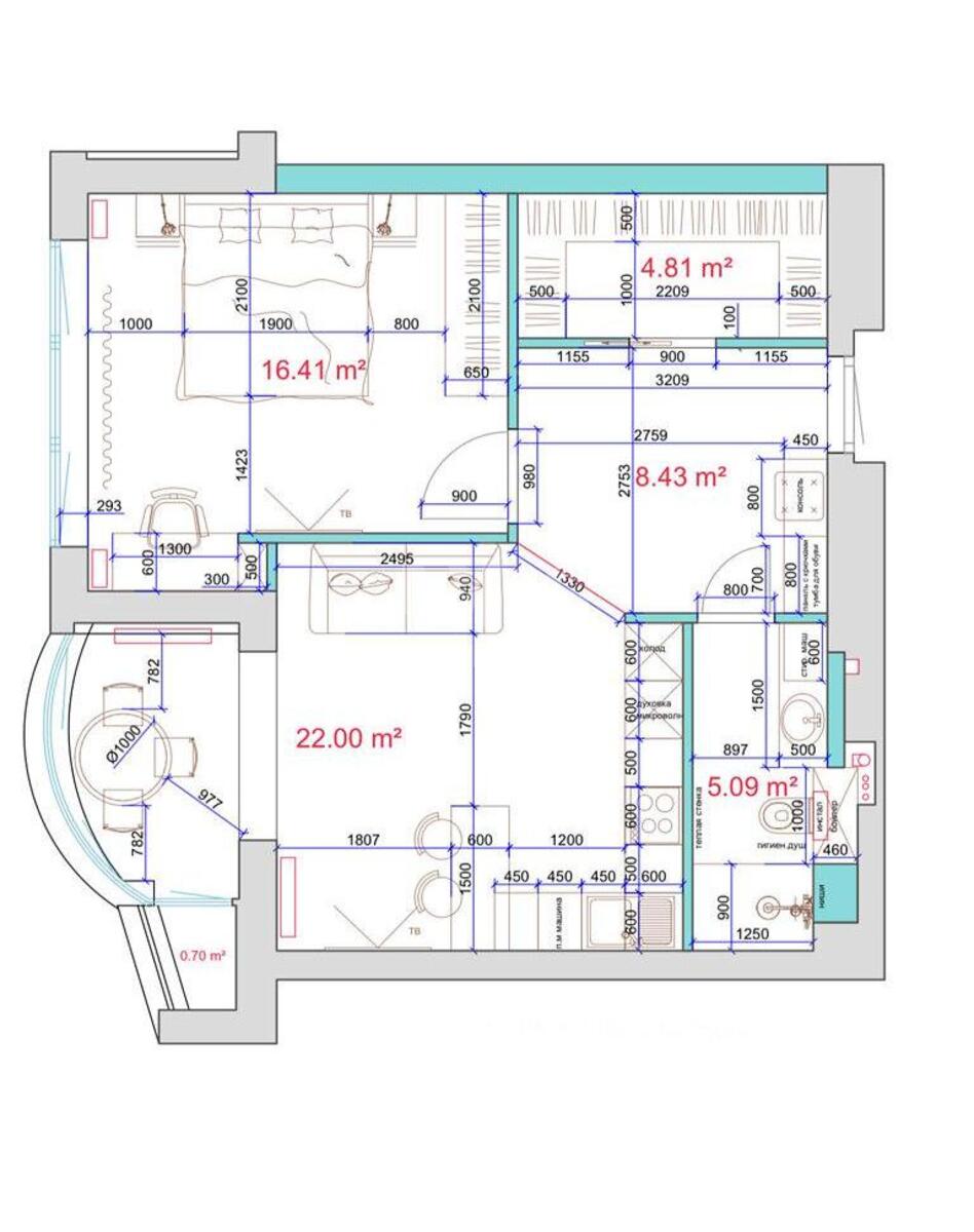
Total area
57 м2
General state
With repair
Price:
77 628 UAH
1 845 USD
Description of the object

2-bedroom apartment. Spacious apartment with a kitchen-living room and a large separate bedroom. There is a comfortable dressing room, a panoramic balcony overlooking the city. The apartment has underfloor heating, two air conditioners and two TVs. The kitchen is equipped with high-quality Bosch appliances: an induction stove, an oven, a dishwasher, a microwave, and a refrigerator. High-speed internet is available. The apartment is located in the diplomatic district, where the lights are not turned off. There is an underground parking lot with an elevator going down directly from the residential floors. The entrance groups and the entrance are made in a modern style, the layout of the building is well thought out, the courtyard is closed. The territory of the complex is equipped with a courtyard. There are recreation areas, landscaping and pedestrian spaces. The layout of the entrances and courtyard is complemented by a floor heating system inside the common areas. The complex is located in a convenient and prestigious area with all the necessary infrastructure around.

Similar offers