1k apartment pr-t Berestejskij 7Б

  • Shevchenkivskyi District pr-t Berestejskij 7Б
  • Code: SF-3-236-506
  • Added by: 06.11.2025
  • Add to favorites
Market type
Secondary market
Street
pr-t Berestejskij 7Б
Number of rooms
1
Floor
2 Floor
Number of storeys
5 storey house
Total area
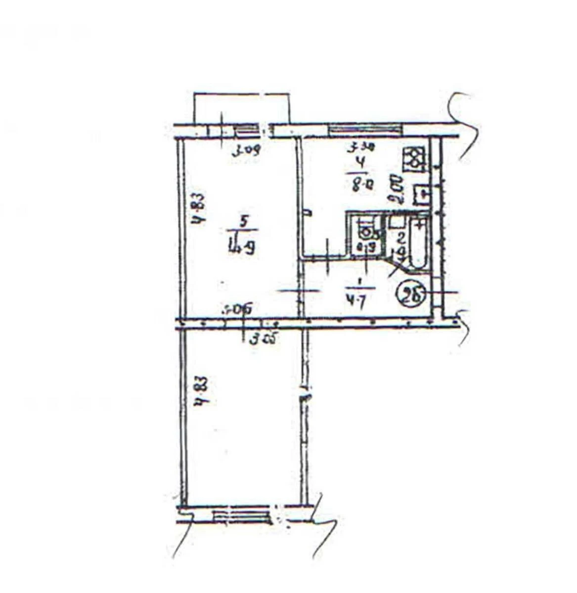
45 м2
General state
With repair
Price:
8 160 231 UAH
193 000 USD
  • AXIS Real Estate
  • AXIS Real Estate
  • AXIS Real Estate
Description of the object

2-bedroom apartment. Studio with elite renovation in the heart of the capital, bright and cozy, ideal for those who appreciate comfort, style and quality. After a major renovation, the apartment is brand new, thought out to the smallest detail in the premium neoclassical style. The layout includes a studio with space for a living room and kitchen, a separate bathroom, underfloor heating in the kitchen, bathroom, corridor and balcony. The apartment has all the necessary furniture and appliances: refrigerator, washing machine, dishwasher, oven, microwave and extractor hood. There is an electric fireplace with a heating function, a wardrobe and a loggia. The house is a brick cooperative, 5 floors, the apartment is on the 2nd floor. Own boiler room provides autonomous heating. All communications have been replaced in the house, hydro and noise insulation has been carried out, and additional ventilation has been installed. The territory of the house is cozy and safe: the secondary line of the avenue provides silence, there is a cozy courtyard, a school, shops, cafes, a shopping center and a Nova Poshta branch nearby. The Vokzalna metro station is just a 10-minute walk away. All conditions for comfortable living and working in the center of the capital are created.

Additional Information

Similar offers