1к квартира ул. Демеевская 39

  • Голосеевский район ул. Демеевская 39
  • Код: RF-3-248-771
  • Добавлено: 02.12.2025
  • Добавить в избранное
Тип рынка
Вторичный рынок
Улица
ул. Демеевская 39
Количество комнат
1
Этаж
5 Этаж
Этажность
9 этажный дом
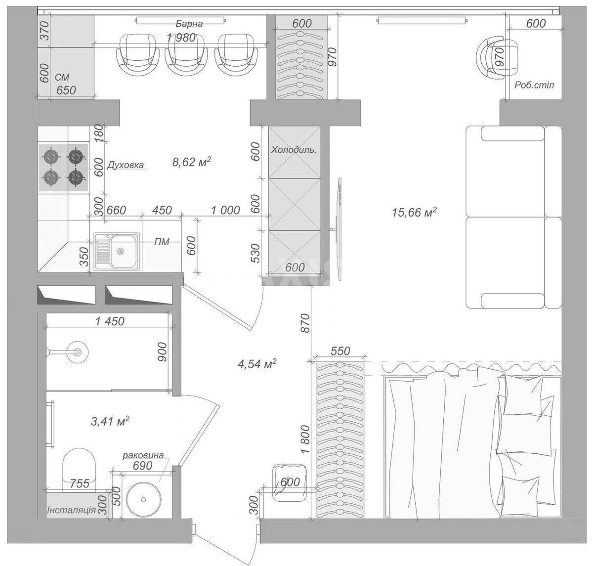
Общая площадь
32 м2
Общее состояние
С ремонтом
Цена:
25 000 грн.
590 USD
  • AXIS Real Estate
  • AXIS Real Estate
  • AXIS Real Estate
Описание объекта

1 комнатная квартира. Современная квартира с раздельной планировкой, выполненная по авторскому дизайн-проекту. Ремонт только что завершен, никто после этого не проживал. Санузел смежный, установлена душевая кабина, теплый пол в кухне и ванной с отдельным регулированием. Квартира полностью меблирована индивидуально изготовленной мебелью, со скрытыми дверями и большим количеством мест для хранения. Есть отдельная кухня и отдельная зона спальни. Установлен бойлер на 80 литров, кондиционер, скоростной интернет и телевизор. Встроенная абсолютно новая бытовая техника с гарантией: холодильник, посудомоечная и стиральная машины, духовой шкаф, газовая варочная поверхность, микроволновая печь и вытяжка. Дополнительно смонтированы новые коммуникации, электрический щит с немецкими автоматами, система черновой очистки воды и дополнительный радиатор в комнате - в квартире очень тепло. Подключено резервное питание: во время блэкаутов работает отопление, интернет и водоснабжение. Квартира подключена к ИБП, которого хватает на 6-8 часов для освещения, работы розеток, телевизора, вытяжки и холодильника. Дом с лифтом и гостевым паркингом, обеспечивает комфорт и современный уровень проживания. Очень выгодное расположение - до метро Голосеевская всего 3 минуты пешком, до метро Демеевская - 5 минут. Рядом есть магазины, кафе, рестораны, спортклубы. Удобная транспортная развязка: примерно 10 минут на автомобиле до Печерска. Район с полной инфраструктурой для комфортной жизни.

Дополнительная информация

Похожие предложения