1к квартира вул. Деміївська 39

  • Голосіївський район вул. Деміївська 39
  • Код: RF-3-248-771
  • Добавлено: 02.12.2025
  • Додати в обране
Тип ринку
Вторинний ринок
Вулиця
вул. Деміївська 39
Кількість кімнат
1
Поверх
5 Поверх
Поверховість
9 поверховий будинок
Загальна площа
32 м2
Загальний стан
З ремонтом
Ціна:
25 000 грн.
590 USD
  • AXIS Real Estate
  • AXIS Real Estate
  • AXIS Real Estate
Опис об'єкту

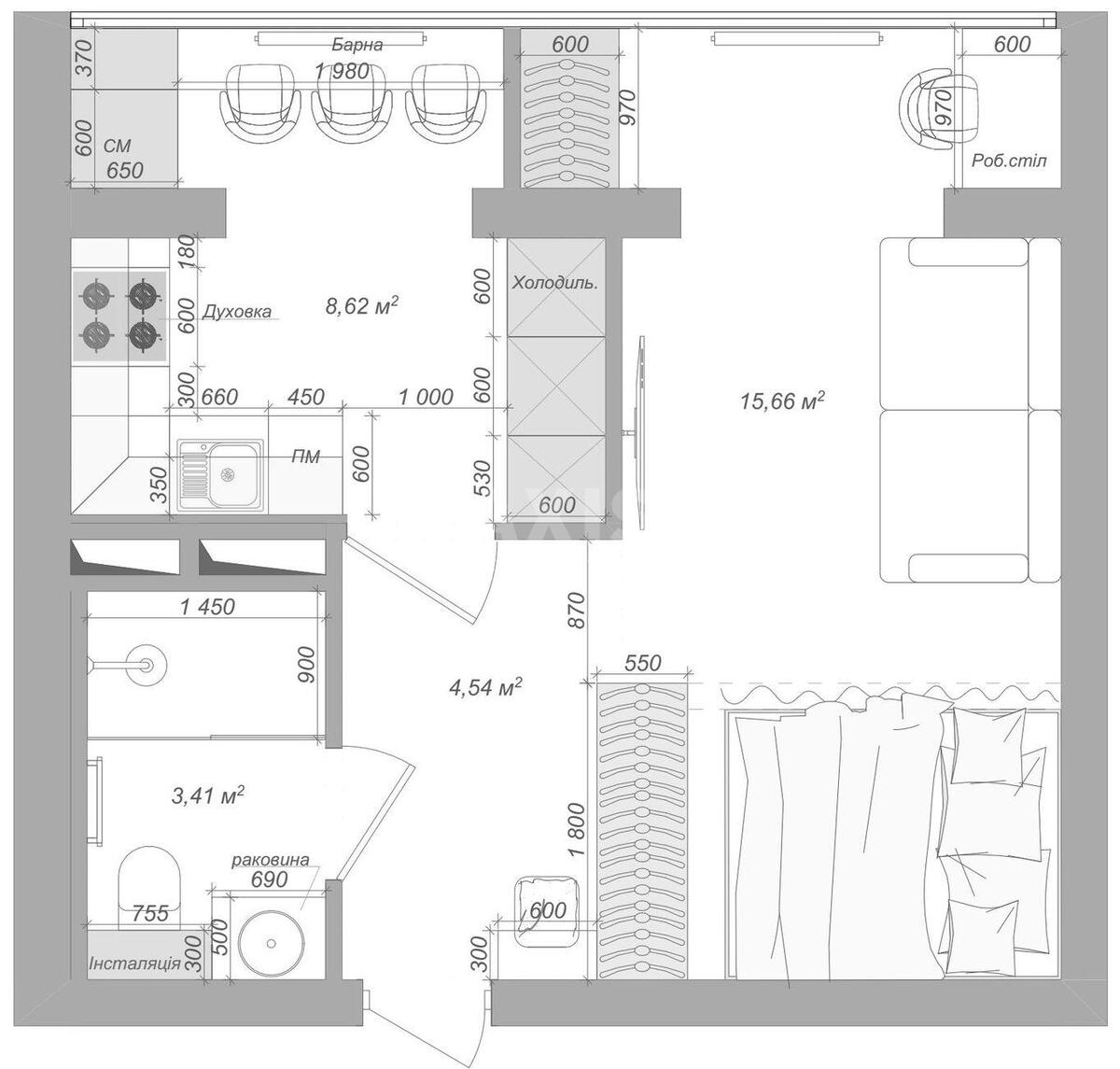
1 кімнатна квартира. Сучасна квартира з роздільним плануванням, виконана за авторським дизайн-проєктом. Ремонт щойно завершено, ніхто після цього не проживав. Санвузол суміжний, встановлена душова кабіна, тепла підлога в кухні та ванній з окремим регулюванням. Квартира повністю мебльована індивідуально виготовленими меблями, із прихованими дверима та великою кількістю місць для зберігання. Є окрема кухня та відокремлена зона спальні. Встановлено бойлер на 80 літрів, кондиціонер, швидкісний інтернет і телевізор. Вбудована абсолютно нова побутова техніка з гарантією: холодильник, посудомийна й пральна машини, духова шафа, газова варильна поверхня, мікрохвильова піч і витяжка. Додатково змонтовано нові комунікації, електричний щит із німецькими автоматами, систему чорнової очистки води та додатковий радіатор у кімнаті — в квартирі дуже тепло. Підключено резервне живлення: під час блекаутів працює опалення, інтернет і водопостачання. Квартира під’єднана до ДБЖ, якого вистачає на 6–8 годин для освітлення, роботи розеток, телевізора, витяжки та холодильника. Будинок із ліфтом і гостьовим паркінгом, забезпечує комфорт і сучасний рівень проживання. Дуже вигідне розташування — до метро Голосіївська всього 3 хвилини пішки, до метро Деміївська — 5 хвилин. Поряд є магазини, кафе, ресторани, спортклуби. Зручна транспортна розв’язка: приблизно 10 хвилин автомобілем до Печерська. Район із повною інфраструктурою для комфортного життя.

Додаткова інформація

Схожі пропозиції